Villa in Vendita
Monteprandone
Codice: 3315
GRAZIOSA Villa SINGOLA IN Vendita A Monteprandone AP)
Si sviluppa su tre livelli con un ampio giardino privato di circa 2100 mq, in parte piantumato e ben curato, completamente recintato con cancello elettrico.
Qui hai la possibilità di godere di momenti di relax all'aria aperta o di organizzare cene e pranzi estivi in compagnia di amici e familiari
.
- Al piano terra di circa 130 mq, attualmente allo stato grezzo, troviamo ampio locale adibito a deposito e un garage di 13 mq.
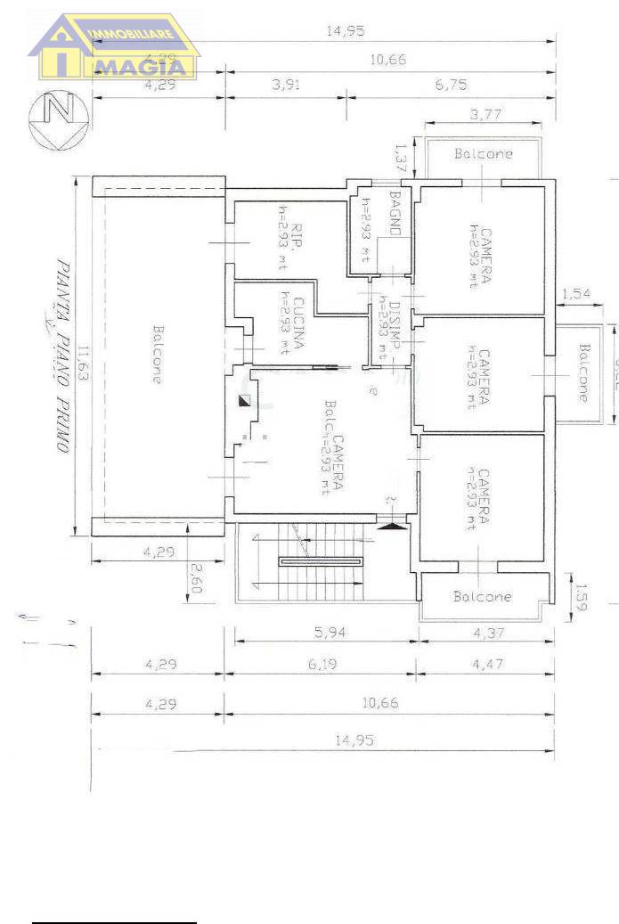
- al primo piano di circa 130 mq, troviamo ingresso su sala da pranzo con caminetto, da qui si accede al terrazzo di circa 50 mq, soggiorno, due camere doppie, una singola, bagno con cabina doccia, lavanderia.
- piano sottotetto di circa 130 mq, con altezza max 2,70 m, allo stato grezzo.
Esternamente, la casa si presenta in ottime condizioni.
- la casa è inoltre dotata di uno spazio esterno esclusivo dove è possibile parcheggiare comodamente più auto.
- sono presenti infissi in legno con doppio vetro, aria condizionata e impianto fotovoltaico di 6 kw.
una vera occasione da non perdere per chi desidera vivere in un'oasi di tranquillità e lusso sulle colline marchigiane.
rif. 3315
€ 325.000
Classe energetica
F
Informazioni immobile
Codice 3315
Contratto Vendita
Tipologia Villa
Regione Marche
Provincia Ascoli Piceno
Comune Monteprandone
Prezzo € 325.000
Totale mq 390 mq
Camere 3
Bagni 1
Locali 5
Stato conservazione Buono
Piano Multipiano
Piani totali 3
Riscaldamento Autonomo
Posto auto Coperto
Infissi LEGNO
Disponibile Si
Balconi Presente, 17 mq
Terrazzo Presente, 50 mq
Giardino Privato, 2.100 mq
Cucina Abitabile
Box Doppio
Arredato Non arredato
Posizione Periferica
Animali ammessi Si
Caratteristiche
Terrazza 50 m²
Antenna Tv Autonoma
Veranda 50 m²
Tv SAT Autonoma
Ripostiglio
Cantina 50 m²
Camino
Aria Condizionata
Impianto Elettrico A norma
Doccia
Infissi in legno
Persiane
Nelle vicinanze
Trasporti Pubblici
Bar
Virtual tour immobile
Ubicazione immobile




































