Villa in Vendita
Colli del Tronto - Villa San Giusepe
Codice: 3261
Villa di Prestigio con Parco Privato e Piscina a Colli del Tronto (AP)Eleganza, privacy e comfort nel cuore della Vallata del Tronto
In una posizione strategica e riservata, con accesso diretto dalla Strada Statale Salaria, proponiamo in Vendita una magnifica Villa signorile immersa in un parco esclusivo di circa 10.000 mq, arricchito da alberi secolari, zone relax e una splendida piscina.
Questa proprietà, unica nel suo genere, è la soluzione ideale per chi desidera vivere nella tranquillità della natura senza rinunciare alla vicinanza ai principali servizi e collegamenti.
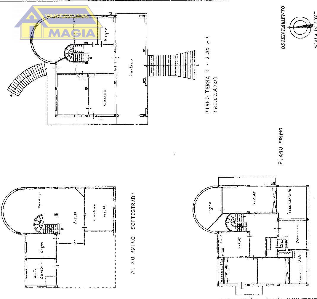
La Villa si sviluppa su tre livelli, con ambienti ampi e luminosi, finiture eleganti e spazi pensati per il benessere:
- Piano rialzato: l'ingresso si apre su un suggestivo portico panoramico che guarda sul giardino e sulla piscina. L’interno è composto da un doppio salone con camino, cucina abitabile, studio e bagno di servizio.
- Primo piano: la zona notte accoglie quattro camere da letto, tra cui una master suite con cabina armadio e sala da bagno privata. Completano il piano un secondo bagno e un ampio terrazzo panoramico.
- Piano seminterrato: taverna con cucina in muratura e camino, ideale per cene conviviali, zona fitness, lavanderia, bagno e garage doppio.
Contattaci oggi stesso per ricevere maggiori informazioni o prenotare una visita privata.
Agenzia Magia Immobiliare – Castel di Lama & San Benedetto del Tronto
Immobile gestito in collaborazione con UniCredit Subito Casa
€ 590.000
Classe energetica
F
EP glnr: 180.92 kwh/m²
Informazioni immobile
Codice 3261
Contratto Vendita
Tipologia Villa
Regione Marche
Provincia Ascoli Piceno
Comune Colli del Tronto
Zona Villa San Giusepe
Prezzo € 590.000
Totale mq 403 mq
Camere 4
Bagni 4
Locali 12
Stato conservazione Buono
Piano Multipiano
Piani totali 3
Riscaldamento Autonomo
Età costruzione 1975
Stato attuale Libero al rogito
Disponibile Si
Balconi Presente
Terrazzo Presente
Giardino Privato
Cucina Abitabile
Box Doppio
Arredato Non arredato
Caratteristiche
Terrazza
Antenna Tv Autonoma
Veranda
Tv SAT Autonoma
Ripostiglio
Cantina
Copertura Fastweb
Camino
Aria Condizionata
Parquet
Impianto Elettrico A norma
Doccia
Infissi in legno
Nelle vicinanze
Palestre
Centri Benessere
Campi da Calcio
Complessi Sportivi
Campi da Tennis
Piste Ciclabili
Parchi Giochi
Stazione Ferroviaria
Trasporti Pubblici
Asilo
Scuole Elementari
Scuole Medie
Scuole Superiori
Bar
Uffici postali
Centri commerciali
Uffici comunali
Virtual tour immobile
Ubicazione immobile































































