Appartamento in Vendita
Appartamento di Nuova Costruzione in Vendita ad Acquaviva Picena (AP)
Delizioso Appartamento, in Classe energetica A in una location di pregio ai piedi della stupenda cittadina medioevale di Acquaviva Picena, a soli 3km dalla spiaggia di San Benedetto del Tronto, con vista panoramica dalla quale è possibile ammirare il mare adriatico e le più alte vette dei monti appenninici, come il Vettore, il Gran Sasso e la Maiella.
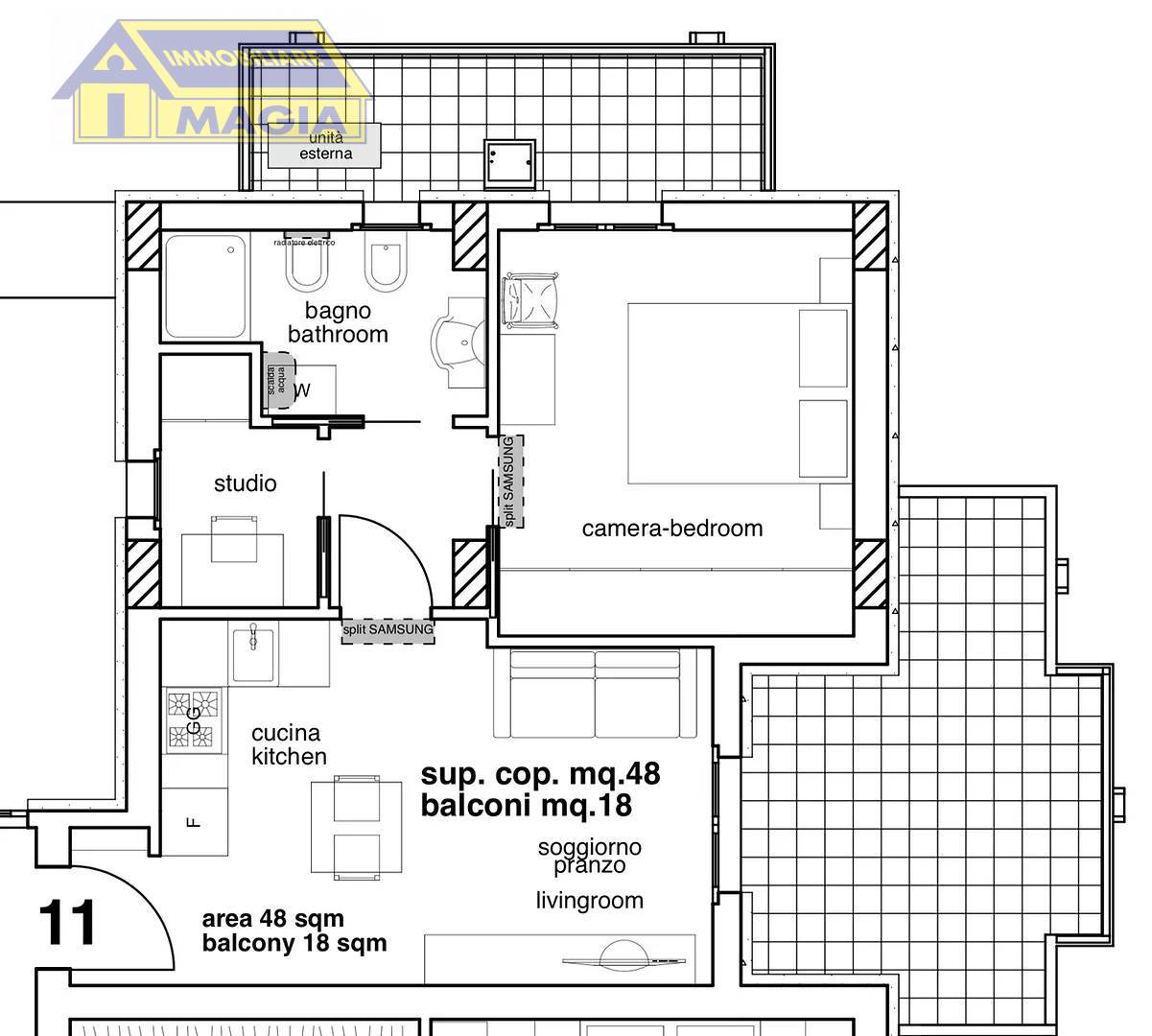
L'unità abitativa di 48 mq, si compone di ingresso su luminoso soggiorno con cucina a vista, disimpegno, un bagno, una camera matrimoniale e un studio
Completa la proprietà une balcone di 18 metri, un posto auto e una cantina
Possibilità di abbinamento con fondaci e altri posti auto ad un prezzo da computare a parte. .
Ottime rifiniture interne di assoluto pregio con possibilità di scelta da parte dell'acquirente, impianto di riscaldamento a pavimento, impianto ventilazione meccanica controllata degli interni, pannello fotovoltaico, predisposizione impianto d'allarme ed aria condizionata, parabola satellitare condominiale, sanitari sospesi, videocitofono e portoncino blindato.
I materiali da costruzione sono di alta qualità di provenienza esclusivamente italiana, manodopera e forniture dei migliori artigiani della zona, vernici anallergiche e antimuffa.
REALIZZAZIONE di ECO RESIDENZA
L'edificio rispetta tutti i criteri previsti dalla normativa antisismica.
La zona ha un bassissimo inquinamento elettromagnetico, acustico ed atmosferico e per la realizzazione del complesso è previsto l'utilizzo di almeno il 50% di energie rinnovabili.
Pronta Consegna
Classe energetica
EP glnr: 45.45 kwh/m²







