Casa Indipendente in Vendita
Cossignano
Codice: 177
Casa Cielo-Terra con Terreno in Vendita – Cossignano (AP)
Immersa nel verde e nella quiete delle colline marchigiane, proponiamo casa di campagna affiancata di circa 250 mq, ideale per chi desidera ampi spazi, indipendenza e natura, senza rinunciare al comfort.
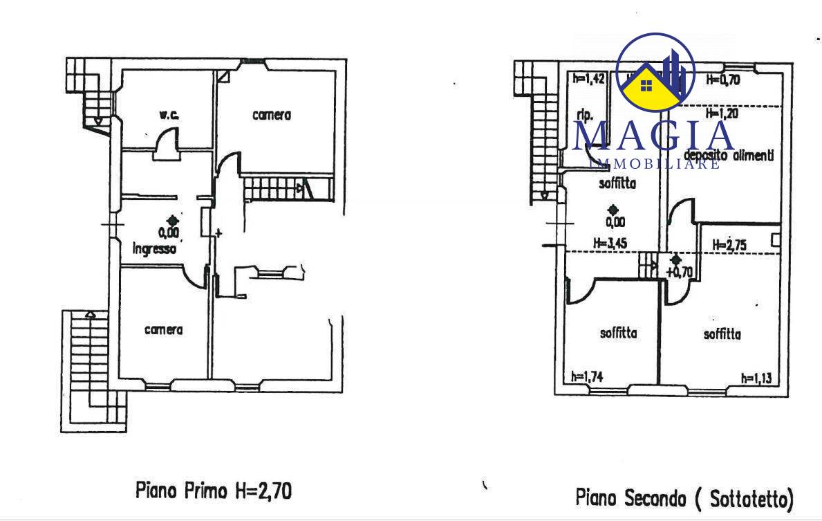
La proprietà si sviluppa su tre livelli:
- Piano terra: ingresso su soggiorno, cucina abitabile a vista con camino e spaziosa cantina, perfetti per la convivialità e la vita quotidiana.
- Primo piano: zona notte con tre camere matrimoniali, disimpegno, antibagno, bagno finestrato con box doccia e locale di servizio.
- Secondo piano (con accesso indipendente da scala esterna): luminosa zona giorno con angolo cottura e soggiorno con suggestive spiovenze, camera matrimoniale e bagno finestrato.
- Terreno agricolo di circa 4.800 mq con ulivi e piante da frutto
- Corte esclusiva di circa 300 mq
- Vista sulle colline circostanti
€ 120.000
Classe energetica
G
EP glnr: 270.00 kwh/m²
Informazioni immobile
Codice 177
Contratto Vendita
Tipologia Casa Indipendente
Regione Marche
Provincia Ascoli Piceno
Comune Cossignano
Prezzo € 120.000
Totale mq 180 mq
Camere 3
Bagni 2
Locali 6
Stato conservazione Buono
Piano Multipiano
Piani totali 3
Riscaldamento Autonomo
Adatto per studenti Si
Infissi ALLUMINIO/VETRO
Stato attuale Libero al rogito
Disponibile Si
Esposizione EST/SUD/OVEST/NORD
Giardino Privato, 300 mq
Cucina Abitabile
Arredato Non arredato
Posizione Zona agricola
Animali ammessi Si
Caratteristiche
Antenna Tv Autonoma
Tv SAT Autonoma
Ripostiglio
Copertura ADSL
Cantina 25 m²
Camino
Impianto Elettrico A norma
Doccia
Infissi in legno
Infissi in alluminio
Persiane
Nelle vicinanze
Palestre
Centri Benessere
Campi da Calcio
Complessi Sportivi
Campi da Tennis
Piste Ciclabili
Parchi Giochi
Stazione Ferroviaria
Trasporti Pubblici
Asilo
Scuole Elementari
Scuole Medie
Scuole Superiori
Bar
Uffici postali
Centri commerciali
Uffici comunali
Ubicazione immobile

























